Original size 1140x1600

Школа пансионат

PROTECT STATUS: not protected
23
0
0
0

Схема функционального зонирования

0

Поэтажный план с разлеткой

0

Фасад + развертка

0

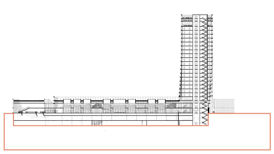
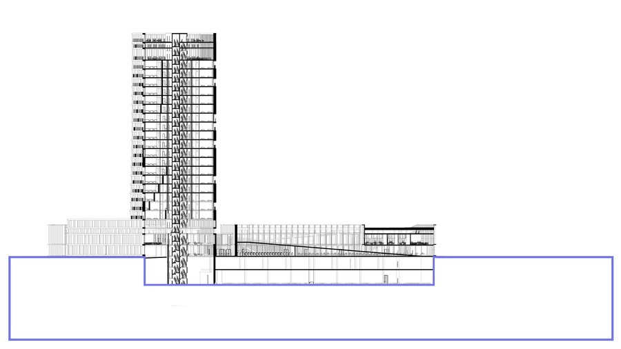
Разрезы

0

Интерьер

0

Экстерьер

Школа пансионат
23
We use cookies to improve the operation of the website and to enhance its usability. More detailed information on the use of cookies can be fo...
Show more