
Богородская объемная резьба по дереву — всемирно известный русский народный промысел, зародившийся в XVI веке благодаря крепостным Троице-Сергиева монастыря. Богородская игрушка — симбиоз крестьянской культуры и городского влияния. В ней сочетаются черты лубка, фарфоровая пластика, эстетика книжной иллюстрации и опыт академической живописи. В 1971-м году в поселке Богородское было построено здание фабрики художественной резьбы, а в 1980-х здесь был открыт частный музей.

Фотофиксация
Основная проблема музея заключается в отсутствии единой дизайн-стратегии, что проявляется в устаревшем оформлении, хаотичной экспозиции и неэффективном зонировании. Цели реновации — с помощью дизайна пространств раскрыть богородский промысел как локальный бренд, создать центр притяжения туристов, формирующий лицо города и рассказывающий об истории промысла, а также организовать «третье место» для жителей, способствующее творческому взаимодействию.
Визуализации

Вестибюль
Вестибюль
Вестибюль
Кафе
Кафе
Магазин
Библиотека
Библиотека
Мастерская
Мастерская
Экстерьер
Экстерьер
Планы и схемы
Схема функционального зонирования
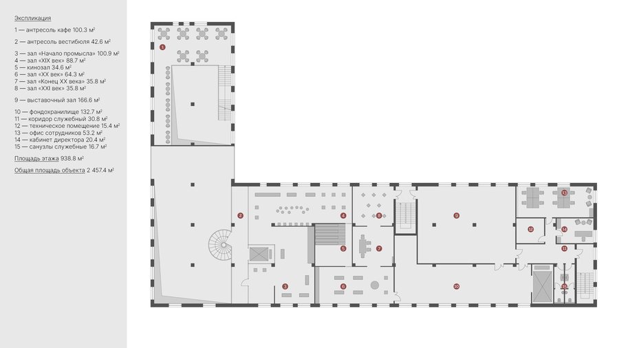
Планировочное решение. Этаж 1
Постоянная экспозиция
Зал временных выставок
Ссылка на дипломное визуальное исследование