
Конкурс проходил в сентябре 2025 года
Задачей было создать современную, привлекательную для молодых специалистов производственную площадку с образовательной и co-working направленностью
Для кого: флагманский бренд Cha U Kao и контрактные заказы на уходовую косметику
Цветовая палитра: светлая с яркими цветовыми акцентами
Материалы: экологичные и устойчивые к износу
Я заняла второе место
В ходе конкурса я разработала концепцию дизайн-проекта, планировочное и визуальное решения
Получила призы от организаторов и приглашение к сотрудничеству от бренда
Узнать подробности конкурса можно будет совсем скоро в статье Skillbox Media (выпуск уже находится в верстке)
Кластер должен стать местом притяжения, центром нетворкинга, где смогут обмениваться опытом все увлеченные миром косметики — от начинающих специалистов до бренд-менеджеров и руководителей компаний

Cha U Kao — креативный бренд косметики для ухода за кожей
Бренд вдохновлялся личностью французской артистки Ша-У-Као — клоунессы и танцовщицы Мулен Руж
Он для тех, кто преследует творческий подход к делу, относится к жизни с оптимизмом и ценит эстетику во всех проявлениях
Важно было отразить в проекте дух Cha U Kao — праздник как образ жизни и неиссякаемое ребячество внутри

Объект. Инновационный завод NUOLAB
Фирменный стиль бренда Cha U Kao
Концепция дизайн-проекта
Мудборд
Колористическое решение
Текстурная доска
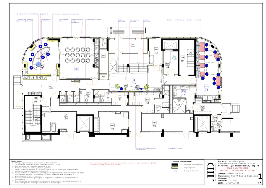
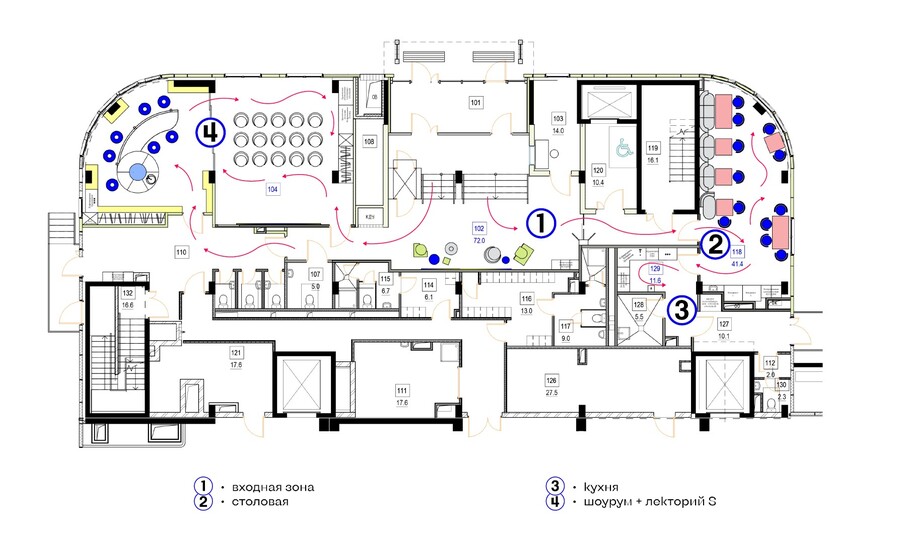
Входная зона
Столовая
Шоурум
Малый лекторий S
Коворкинг и зона отдыха
Офис опенспэйс
Малая и большая переговорки
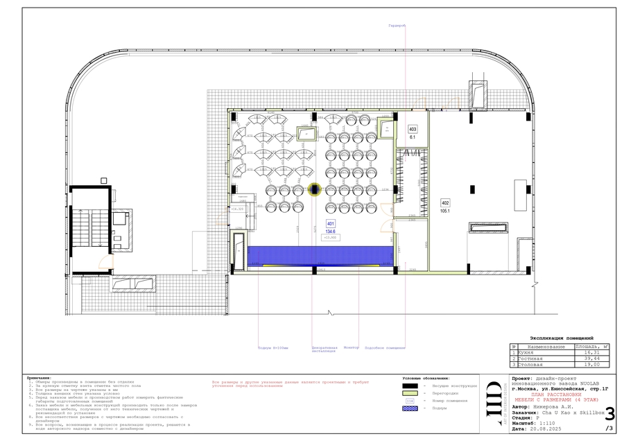
Большой лекторий L
Функциональное зонирование
1. Функциональное зонирование этажа 1 2. Функциональное зонирование этажа 2 3. Функциональное зонирование этажа 4
Планировочные решения
1. Планировочное решение этажа 1 2. Планировочное решение этажа 2 3. Планировочное решение этажа 4