
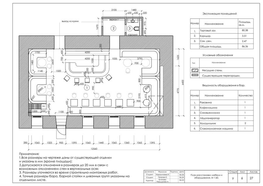
Реновация кафе «Бизе» во французском стиле неповторимой атмосферой Парижа 20 века. Элегантный и стильный ресторан с накрахмаленными скатертями и винтажными предметами сервировки, куда приходят, чтобы погрузиться в атмосферу Парижа, развлечься, расслабиться и отдохнуть, оставив позади рутину. Место, где можно провести непринужденный завтрак или нарядный ужин. Настроение передает и само название. «Бизе» — с французского переводится как «поцелуй». Ресторан находится в историческом доходном доме на улице Жуковского, недалеко от дворика Сен Жермен. Вместительность: 38 посадочных мест. Закрытая кухня, обслуживание официантами. Хостес, встречающий гостей и помогающий снять верхнюю одежду в гардеробе. Средний чек: 2500-3500₽. Время транзакции: 2 часа.